Restoration of the old King's Palace at K. Vermion (Seli) - Reuse as a hotel for Seli ski centre / December 2007
The central three-story building, built during the frist decade of the 20th century for King Konstantinos of Greece for the winter, is now owned by an architect living in Veria. Hate to watch it isolated and deserted he decided to reuse it as a luxurious hotel for the ski centre nearby.
The main idea was to maintain the volume of the old building and add around it two-storied buildings attached with zones of glass. The intention was to be able to recognize the additions in the future and also to make the old building maintain it's domination.
![]() |
![]() |
![]() |
![]() |
![]() |
![]() |
![]() |
![]() |
![]() |
![]() |
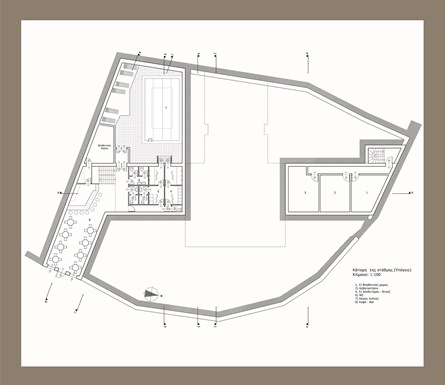
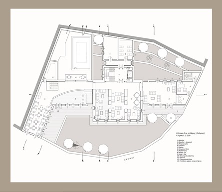
| Basement / Storage - Cafe - Swimming pool | Ground floor / Reception - Bar - Dining area - Presentation hall |
![]() |
![]() |
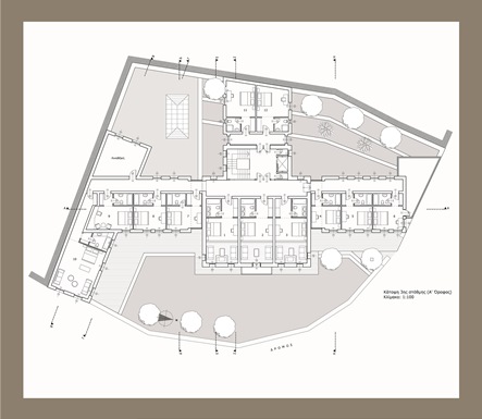
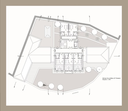
| 1st floor / Rooms and suites | 2nd floor / Rooms and suites |
![]() |
![]() |
| Sections | Elevations |














